143 Halcyon Dr
Hampstead, NC 28443

Price
$1,200,000

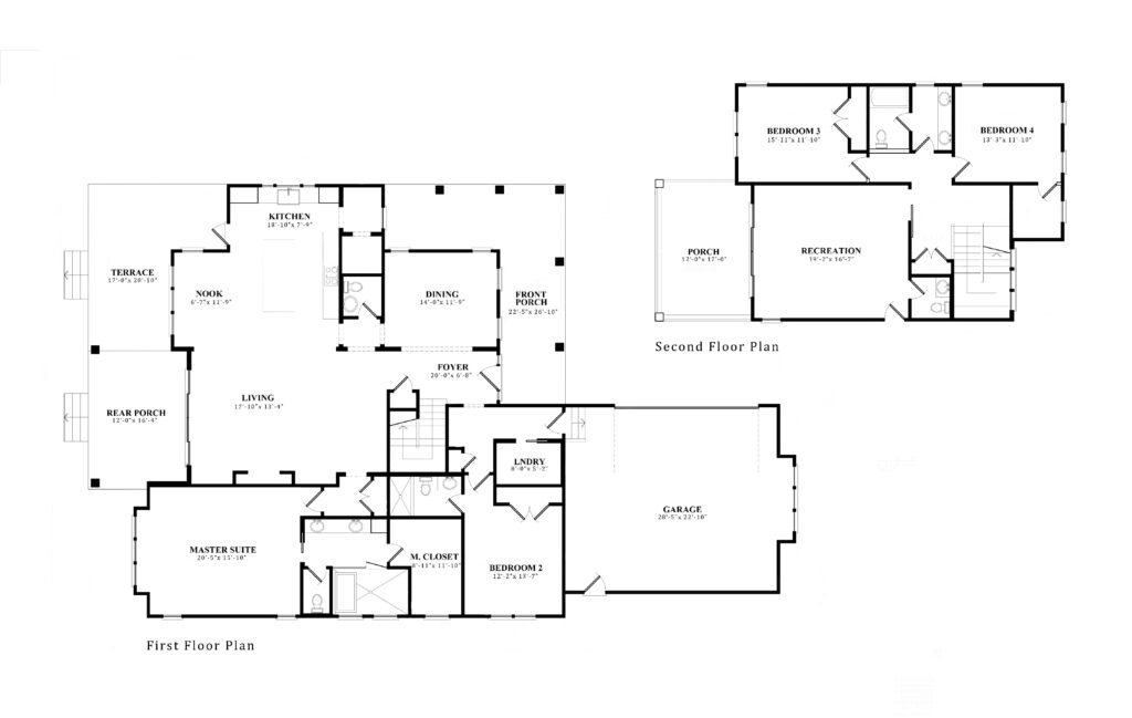
Square Footage
3353

Bed
4
Bath
4
Garage
2

Neighborhood: Halcyon

Lot #: 12

Status: Under Construction

Floor Plan: Virginia Creek

*Photos may be of similar home plans.

Floor Plan

Ask a question. We're here to help!

"*" indicates required fields

This field is for validation purposes and should be left unchanged.

We would love to set up a time to give you a personal tour of this home. Send us your information below along with the date that you would like to visit and we will confirm with you ASAP!